装饰装修设计效果图-你见过哪些让人惊艳的简约风室内装修设计案例?

你见过哪些让人惊艳的简约风室内装修设计案例?
大多数住户在装修的时候都冥思苦想想让自己的家装设计更加别致,与众不同。但是那些大热门的风格已经开始让人变得审美疲劳,很难再有惊艳的感觉,下面就为大家介绍3中简单室内装修设计中比较小众的风格。

1、工业风
它是从仓库或城市阁楼中获得灵感,通过将建筑的工作部分转化为其基本的美学风格。梁、柱、管道、管道的部分强调了“生活的机器”,使这些内部空间呈现出一种男性化的特征。它的设计不回避重量或粗糙,拥抱旧的、回收的。通常选择暖色调、中性色,如铁或钢的灰色和棕色,在许多元素中都有一种未完成的原始感,在裸露的砖、管道和木材中也很常见。
想想高高的天花板、旧木材和悬挂着的金属灯具,以及稀疏的功能性家具,可能会有一到两件抽象艺术或摄影作品,为原本由木材和金属制成的中性色彩方案添加一点色彩,可以说是简单室内装修设计中一个耀眼的存在。
2、法式风情乡村风格
暖暖的,质朴的颜色象征着法国乡村的风格,以及穿着和装饰的木质家具。这种风格有一中包罗万象的农舍的灵感,很符合现在年轻人想要的简单室内装修设计。
法式风情乡村的设计可能包括柔和温暖的红色、黄色或金色以及天然材料,如石头和砖。法国的乡村设计包括华丽的瓷碟、厚重的床单和床罩。
3、复古风格
与流行的观点相反,复古风并不是要在你的家里再造一个跳蚤市场,并非所有古老的东西都有复古的魅力。二战结束后,人们利用一切可用的东西重建家园,创造温暖、充满爱的空间。正是这种“混合与搭配”的美学风格,通过时间的磨损和考验,在很大程度上让复古风的风格与众不同。这种简单室内装修设计适合各个年龄阶段的人。
其实还有很多简单室内装修设计风格,有些人还喜欢将几种设计风格的特色元素搭配组合在一起,以创造出自己理想的外观。
简约不简单。
简约是一种品质的体现,简约是一种实力的体现,简约更是大S的手笔。简约不管从设计角度还是生活的角度都是那么的有品位。我给大家推荐一家邦洛尼全屋定制公司的产品看看,是不是您想要的简约而又惊艳的感觉呢?









本案是一套面积为119平米的简约风三居室,屋主是一位设计师,看过无数张美图,逛过上百家家居店,去过很多地方,体验过很多酒店。整理思绪,理清需求,历时半年,于这套房子里还原了曾经经历过的美好生活碎片。


户型改造:借用北边小卧室部分空间设置了玄关储物柜,余下的空间用作客卧&书房;将原封闭式厨房打开,并将北阳台纳入餐厅,扩大使用面积的同时,餐厨区也变得格外通透;将其中的一间房用作洗衣房&衣帽间,动线合理。
客厅
将阳台纳入客厅,阳光透过大大的落地窗洒进室内,明亮温暖。木质细边门框,简洁轻盈,为简约的设计增分。

巴萨罗那沙发椅、玻璃茶几和棕色的丝绒沙发,每件单品都是经典。绿植在视线里摇曳穿梭,营造出轻松氛围。

与客厅相隔的阳台阅读角就在这里,翻开一本书,依偎窗边等落日。
餐厅
从餐厅一角可以看到客厅全景,南北通透,视野极好。

开放的餐厨空间,欢声笑语没了阻碍。餐厅的黑色顺势延伸到厨房墙面,内外呼应。将北阳台纳入餐厅并增加储物岛台和餐桌相连,美观与功能性都得到了大大提升。

餐桌背后一幅临摹常玉的油画,在经典名椅之中也能成为整个画面的视觉重心,撑起这个空间的艺术调性。
主卧
明亮温柔的主卧空间,没有任何冗余的装饰,几件充满质感与设计感的家具就足以让屋主获得最好的放松。

清晨,光影壁画如约而至,安抚不想起床的冬日情绪。金属、石纹、皮质、布艺,不同材质的汇合与Awa Table的柔美线条有着鲜明对比。
书房
小卧室分出部分空间出去之后,采用榻榻米设计,即可做书房也做客卧,还有超大的储物空间,空间利用率极高。
多功能房&卫生间
穿过客厅木制门洞,是连接衣帽间、主卧、和卫生间的走廊。卧室房门的造型来源于欧洲某教堂。足够体量的衣帽间and洗衣房组合,生活不再奔波。

悬空的盥洗台让整个空间轻盈起来,墙出龙头与墙排下水的使用也使得空间更为规整,干净利落。穿过长虹玻璃的神秘,到达最舒服的私人领域,在这里,身体得到完全的舒展。
这些天因为疫情不能开工,所以一直在做设计。正好在我这里有套让人感觉惊艳的简约风室内装修设计案例。分享出来,希望大家多多指教!

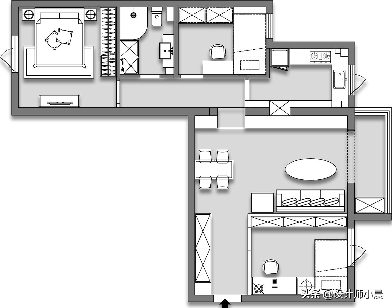
从平面图来看,感觉这个户型有点怪,典型的手枪型户型,一个南北不通透的小3居室,但就是这么一个让人不看好的户型,经过设计师设计之后,达到了让人惊艳的简约风效果。
下面是设计图,大家看下:

客厅背景墙做了一面存储柜,因为家里面积不大,需要想方设法做出储物空间,同时又不影响正常室内空间。电视柜设计的简约时尚,无门把手柜门,干净简练。同时整个房间配色也以白色为主,白色乳胶漆搭配灰色地砖,给人很干净的感觉!

减少多余的墙面装饰,一副装饰画,一个吊灯即可。

这个房间是儿童房,房子形状的床,床看上去嵌入进去了一部分,这是因为右边这面墙做了一整面墙的储物柜。既满足储物,又满足了睡觉休息。这也是这套房子让我感觉设计最惊艳的地方!

次卧室,次卧室设计了一个书桌+书柜。柜子采用现场定制方式,以保证最大程度符合实际现状。因为家里2个孩子,所以这2个房间书桌和书柜都是标配哦!

主卧室,配色大胆奔放,黑色玻璃门的衣柜简约大气,这款衣柜一般很少有人会选择,主要是担心驾驭不了。

卫生间,实用性为主,因为家里阳台也放不下洗衣机,所以我们把洗衣机设计在了卫生间,同时洗衣机上方设计台面和吊柜,提高储物能力。

厨房颜色以灰色和白色为主,深灰色柜门搭配白色墙砖,层次感分明!
以上就是整个方案设计,还请多多指教!
分享一篇用纯粹的白色和自然的木色打造的现代简约风格的家,希望能对您有帮助。
在这套111平现代家居装修中,整体以简洁的暖白色和自然的木色为主,传达出极致的宁静和优雅的格调。精致的家居设计以柔和圆润的家具轮廓以及精美的弧形墙壁为特色,营造出温馨舒适的布局,美妙的曲线舒适地包裹着每个生活区域和每一个转弯,奢华的大理石将酒红色的脉络融入明亮的环境中,增加了设计的深度和迷人的图案。

弧形沙发在客厅和餐厅之间形成一条松散的分割线,沙发靠背在中间断裂,彰显个性的同时也加强了生活空间之间的开放连接。

白色的休闲家具在乳白色地毯的映衬下,与柔软的白色窗帘和干净的白色灰泥墙相得益彰。

现代咖啡桌用奢华的酒红色纹理的大理石打破了宁静的装饰。

引人注目的咖啡桌和两侧精美的壁龛相得益彰,壁龛的装饰采用相匹配的大理石搁置和支撑。

设计感十足的现代壁灯,将视线引向独特造型的波浪形壁炉设计,整体的色调也与苍白的背景相呼应。

壁炉两侧放着两张单人休闲椅,在舞动的火焰中创造出烤面包的阅读角。

清新的白色装饰花瓶点缀在酒红色的大理石咖啡桌上。

客餐厅一体的设计,在紧凑的空间中展现出强大的凝聚力。

在餐厅的后面,厨房的后挡板被酒红色的大理石覆盖着,与相邻客厅的壁龛设计和咖啡桌设计色调相匹配。

两个吊灯在优雅的餐桌上方盘旋着,像两只飞翔的鸟儿一样,温馨又浪漫。

六把现代的餐椅在一体式的餐桌设计中,具有雕塑般的魅力。

现代餐桌传达了其自身的雕刻美感,与椅子的设计相得益彰。

一盏黑色的线性吊灯从瓷雕塑上方垂下来,放置在用餐区一侧的底座上,圆形底座平滑地安装在弧形墙的倾角内,将生活空间与家庭入口分开。

在用餐区后面,一个木制的橱柜为白色的空间增添了温暖的气息。

奢华的大理石后挡板与配套的厨房台面以及石墙上突出的单壁架相连接。

在弧形墙壁另一侧的倾角内还有一个相同的艺术展台,为入口处提供了一种文化气息。

同样是黑色的线性吊灯照亮了前门的雕塑。

在这个清新的白色卧室中,独特的床头背景墙和精美的定制床头柜,在房间的宽度上跌宕起伏。

白色的软垫床靠在特色背景墙上,与其柔软的质感相得益彰。

独特的雕塑床头柜立在床头板的两侧,在曲线上层层叠叠。

一个优雅的花瓶为不饱和的环境注入了一股生机。

现代壁灯在背景板上直射阅读区。

美感十足的枝形吊灯将植物之美融入卧室设计。

夜幕降临时,LED 灯丝带在床头板的两侧切割出灼热的光轴。

梳妆台位于靠近床脚的窗户旁,圆形梳妆凳和圆形梳妆镜延续了弧形造型的主题。

在梳妆台旁边,一面复古的全身镜掀起了波澜。

装饰性墙镜是乳白色的,但打开时会发出粉红色的霓虹灯光。

在套间浴室内,一个细长的白色洗漱水槽矗立在一面自由造型的镜子前。

微水泥营造出微妙的阴影背景,与纯白色的卫生洁具形成柔和的对比。

冷白色 LED 灯从边缘明亮处点燃小型淋浴区。

立式毛巾加热器与独立式面盆水龙头的哑光白色饰面相得益彰。

一个狭窄的浴室置物架插入梳妆区的角落里,闪耀着空灵的白光。

走廊里酒红色纹理的大理石瓷砖回归,周围的照明完美地突出了它。

更多酒红色纹理的大理石为客用浴室增添了豪华地板,兼作洗衣房。

洗衣机巧妙地隐藏在木镶板储物柜内,滚筒式烘干机和洗衣机以堆叠的方式摆放,以节省空间,洗涤剂存放在上方的储物格上。

在洗衣区对面,一面自由造型的浴室镜,其边缘燃烧着明亮的光芒,发光的镜子突出了现代质感的木墙板,一个独特的洗漱水槽从定制的梳妆台中凸显出来。

底部安装的 LED灯 突出了浴室盆的悬臂位置。

一个现代壁灯安装在自由造型的浴室镜旁边,以增加梳妆台上的工作照明。

一个白色的雕塑艺术装饰在梳妆台的酒红色大理石台面上,与水槽另一侧的白色哑光独立式水龙头相得益彰。
觉得文章有用就打赏一下文章作者
支付宝扫一扫打赏

微信扫一扫打赏


还没有评论,来说两句吧...