家装diy设计软件app-家里房子要装修了,有没有一款可以模拟装修的软件?

家里房子要装修了,有没有一款可以模拟装修的软件?
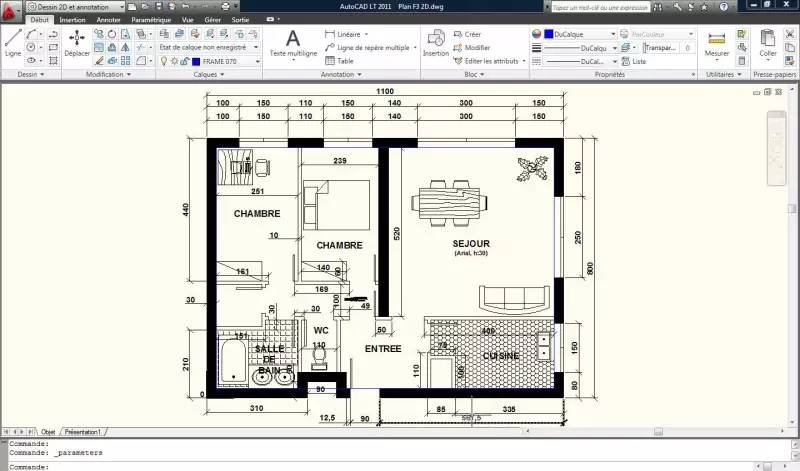
现在很多的软件都可以模拟装修房子像是有人会经常用到CAD的软件,它是一种轻量化的快速制图软件,安装操作都特别的方便,而且画图的功能特别齐全,设计的独特功能可以大大的提高制图的效率,这样在设计的时候也会很好的缩短需要的时间。
装修设计可以用什么软件?
“装之家”帮您解答疑问;装修设计师到底要学哪些软件呢?

我自己学软件的起初目的,是为了有一天能拍出这样工作照。有这样的办公室、这样的书架,这样的我。

多年后我才发现,这完全是个坑,重点完全不在软件上...

这年头,颜值底真没法混,好吧,还是来说软件。重点还是在软件上的,O(∩_∩)O哈哈~
作为从业十年的室内设计师,我常用就这么几个,AutoCAD、Photoshop、SKetchUp和3ds Max。下面这几个图标,认识吧。不懂?给我点赞,我告诉你。

AUTOCAD(简称CAD):
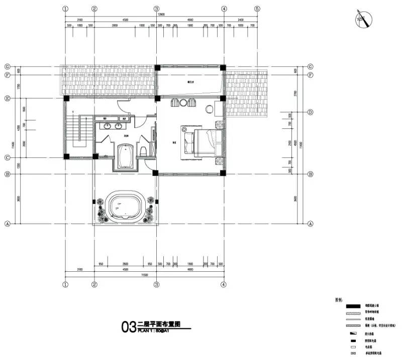
如果说室内设计师必须要掌握一款软件的话,那就是CAD了,它主要用来做设计图的平面、立面、吊顶、施工节点图等工程用图。大致就长这个样。

这是我为海南乐东天池桃园酒店设计的一个平面图,就是用CAD画的。

最近,我好像很久没有画CAD图了,为什么呢?
因为有人帮我画,O(∩_∩)O哈哈~
Photoshop(简称PS):
没错,就是大家常说的P图软件。强大到只要是图片,基本都可以用它来处理输出。在室内设计领域,PS可以对MAX渲染出来的图进行美化和后期修饰,也可以用来处理其他一些参考图片、制作提案PPT等。

这个是上文说到的项目的一个效果图,图片最终输出之前,一定是在Photoshop中修饰的。

在做方案、PPT时,也经常用到PS。
不会PS?
难道你的女神让你修下她的照片,你说不会?
SketchUp(有人叫他草图大师):
主要用来做三维草图,比起其他三维建模软件,效率不是一般的高。操作不难,还能导出各种平面和里面图。花点时间学SketchUp是值得的。

表现效果比3ds Max要差些,可它牛X的地方是快啊。

不是说天下武功,唯啥不破来着!拿下客户要紧。
3ds Max(简称MAX):
平面、立面等设计方案做完后,用MAX来三维效果图。效果图比较直观,像照片一样,用来把设计方案表现给客户看。VRay是MAX的一款插件,能帮助你把效果图做得更快、更真实。

MAX,估计很多童鞋就不是很了解了。没事,这玩意相对复杂些,可以慢慢学。效果已经可以做成这样了,很真的。这是一个售楼处VIP厅的效果图,主要就是用MAX做的。

说句实话,我基本不会MAX,效果图外包的。
(额外推荐):
一款在线家装软件。操作之简单,几乎不用学**。平面图、立面图、效果图,分分钟搞定。

那上面的几款大软件岂不白学了?专业的终归是专业的。可以供你玩玩,快速出效果。

我不告诉你,我其实对PowerPoint、Excel和Word这Office三剑客也很熟,透了的那种。

其他一些帖子中提到illustrator、After Effects、Flash、CorelDRAW等图形图像软件,还是算了吧,做好室内设计师的核心软件是首要的。
如果有空,可以多多了解更多的技术;
关注“装之家,了解更多精彩装修设计干货!好东西,就是要分享,越分享越快乐!
装修设计用三个软件就可以了,这三个软件分别是:AutoCAD、3DMAX(Vray)、Photoshop。下面我就简单介绍一下,怎么运用这三个软件。
视频加载中...装修要用到的设计的软件,大致有3DMAX,AutoCAD,酷家乐软件,居然设计家,红星设计云等,包括Photoshop用于图像处理,着色出图,使之更切合实际,通过PS,3DMAX,必须回避掌握每个室内设计软件,3DMAX软件进行建模,材料,模型,光显示; AutoCAD的平面映射时,无论是室内还是室外平面图,施工图,立面图,三维地图使用CAD软件的操作。
在内饰设计上,早前时间流行的Lightscape渲染软件,现在用的Lightscape软件越来越少,现在使用的渲染软件的变化有所不同,因为以上的夜景照明图写实的渲染图,以及它是否是夜景照明光或材料的表达比呈现出比好,所以逐渐改变成为室内设计渲染软件vary,vary它可以更好地体现逼真的效果图,不过夜景照明渲染更好地为商界人物,一般业务图将使用夜景照明的时间将大大减少,因为,和要达到的效果的商业效果图是没有那么高的要求。
在这里,根据SketchUp软件:室内设计草图大师是国内还是不常见的,但是,将草图绘制,我们应该学习Sketup的这个软件,这个软件是一个草图大师主,他用于城市规划,景观建筑效果图鸟瞰的。优势的室内效果,工业设计,SketchUp中绘制地图快速,发挥规划的目的。
然而,为了成为一个高级室内设计师,那么必须掌握手绘,手绘和学习手绘地图,手绘地图,学到的技术,包括手绘铅笔画线,PEN线图,彩铅,马克笔,室内手绘表现;学习手绘的图,你应该学会手绘施工图,手绘施工图必须要掌握:手绘,手绘计划,手绘立面图,节点图手绘,手绘的建筑材料。
新年快乐,很好大年初一回答这一问题,我是@小二分享家居室内设计,专注于家居领域, 希望能结识到更多的小伙伴,一起相互学习相互交流,如果觉得小编还不错的话,可以关注小编哈,谢谢啦。装修设计师,设计用的是什么软件?我可以换个词,把装修设计师换为室内设计师。
不管是家装,还是工装,室内设计师都会用这些软件来设计师蛋糕。
第一,AutoCAD 一般我们简称为CAD,它主要画二维图形,当然了,也可以是三维图形,但是主要还是画二维比较常用。

在室内设计用处就是画施工图,包括各种平面布置图,立面图,水电走线图等等。

第二,3D Studio Max,简称3Ds max

,3D,故名思义,主要作用就是把二维改变成三维立体图形,也可以画动画。我们经常看到的室内效果图,基本都是用这软件画出来的,

第三种,Adobe Photoshop,简称PS,它是最专业的修图软件

室内师需要把美的东西展示给客户看,觉得图不好的时候就的P漂亮一些,我们看到的效果图出来之后,基本都要做稍微的调整。

以上,比较常用的就是这三种,当然了,现在软件比较的多比方说 草图大师,主要用于画室外的场景,但不管用哪个软件,只要能把图画好,能把自己的想法表现出来就可以了。
欢迎大家补充。
推荐Sketch up~
这款软件又名草图大师,其最大优势就是简单易上手,主要用于创建和展示3D模型软件,有别于3DS MAX, Sketch up属于平面建模,让人们可以利用简单的颜色、线条和文本提示指导系统来跟踪位置及完成相关的建模操作,用户在进行建模时甚至无需键入坐标。
因此受到了很多室内设计初学者的欢迎。但缺点是较难输出精细的视觉效果,因此很多人会在前期设计阶段使用Sketch up画草图,后期再使用3DS MAX做效果。
Sktech up的主要功能有:
推拉工具:几乎所有造型都可从推拉方式中完成,操作简便。
路径跟随:设计出所需断面后,沿着路径组合出各种复杂造型。
动态剖面:提供实时互动剖面功能,呈现剖切后的空间状态。
动画制作:为已经制作好的模型根据不同角度组合成动画形式。
附下载链接:
Win版软件下载地址:http://anxia.com/w/sketchup-2017
Mac版软件下载地址:http://anxia.com/m/sketchuppro-endmg

有没有可以自己设计装修的软件?
酷家乐是杭州群核信息技术有限公司,以分布式并行计算和多媒体数据挖掘为技术核心[1],推出的VR智能室内设计平台。[2]通过ExaCloud云渲染技术,云设计、BIM、VR、AR、AI等技术的研发,[10]10秒生成效果图,5分钟生成装修方案。[5]通过酷家乐用户可以通过电脑在线完成户型搜索、绘制、改造,拖拽模型进行室内设计,快速渲染预见装修效果。[3]
目前,平台拥有覆盖全国90%的户型库,吸引了超过300万室内设计师(覆盖全国40%的室内设计师)和超1000万业主用户。[4]酷家乐已服务于小米、美克美家、林氏木业、顾家家居、博洛尼等12000家品牌企业,市场覆盖率超过70%。

觉得文章有用就打赏一下文章作者
支付宝扫一扫打赏

微信扫一扫打赏


还没有评论,来说两句吧...