家装设计图纸包括哪些内容呢-装修设计图是否包含详细的水电施工图?

装修设计图是否包含详细的水电施工图?
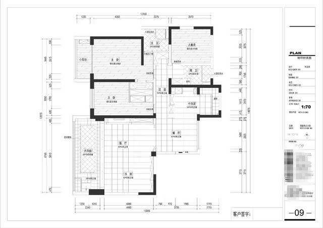
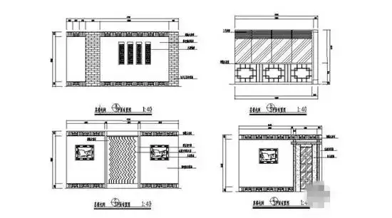
装修时,业主需要提供给设计师户型图,墙体结构图,水电布置图;必要时,和设计师去新房测量。后期装修时,设计师需要提供装修施工图(原始平面图,墙体改动图,平面布置图,吊顶布置图、局部节点大样图,如果要做柜子,还有柜子施工图,开关布置图,插座布置图),顶面布置图,地面布置图,水电改造图、装修效果图。
房子装修开发商需要提供哪些图纸?
答:装修时,开发商需要提供给设计师户型图,墙体结构图,水电布置图。
后期装修时,设计师需要提供装修施工图(原始平面图,墙体改动图,平面布置图,吊顶布置图、局部节点大样图,如果要做柜子,还有柜子施工图,开关布置图,插座布置图),顶面布置图,地面布置图,水电改造图、装修效果图。




房子装修开发商需要提供以下图纸:
1、立面图

2、原始平面图
3、平面布置图
4、墙体改建图
5、地面材质图
开发商是一个名词,是某个项目的第一承担人。包括很多种类:房地产开发商、软件开发商、游戏开发商等某品牌的开发商,但无特殊说明一般指房地产开发商
房子装修开发商需要提供如下图纸:结构图、建筑图、给排水图、电气图、暖通图,房子装修经常根据自己的需求改动墙体,也需改装一些水电暖通的管道,需弄清上述图纸内容后才能进行装修设计,确保原建筑安全及功能不被破坏。

全包装修,装修公司应该给出哪些设计图纸?
首先,感谢您的邀请。
看你们谈到什么程度了,还要根据你所在城市的一个行情。在我们这边就很完整
如果只是前期你去初步沟通的话,可能只会给你出一个平面方案。
如果,已经签订施工合同的话,会出平面图、立面图和施工节点图,水电图,效果图

装修设计施工图出图时需要谁签字有效?
分情况的,如果是单位出图,那就按单位的出图流程签字盖章,一般来说,是设计人、审核人、审定人、批准人逐层签字,如果有要求,还需要盖上单位资质的章(比如建筑甲级、规划甲级等) 还有一种情况就是你自己做的私单,这个只要甲方认可的签字盖章都可以,没那么麻烦。
家居装修设计图纸重要吗?
图纸重不重要看你自己的定位 !简单装修的话!图纸基本上不重要! 装修游击队都给你搞定了! 如果你想看起来高大上一点的话! 这个时候图纸的重要性就呈现了! 这里也不给你做详细的图文介绍了!因为我也是手打文字来回答你的问题!和他们那些复制的不一样! 所以一句话重不重要你去看看那些有图纸和无图纸的对比你就知道 !要不你去派笔设计网站去看看吧! www.cqpbsj.com
作为设计师,我能很负责任的告诉你,当然重要了,装修图纸的设计,不单单就是几张纸而已,而是包括了很多东西,图纸的完搞,是由客户需求,家居布局,装修风格,材料选择,装修预算,等等一系列的构成。
对于你们来说,设计师无非就是划划图纸就行,其实你错了,设计师是整个装修工程的策划师,从风格,到工程落地,到后期软装布局,都是需要设计师严格的把关。
在整个工程过程中,设计图纸,能直观的告诉你,你家装修的风格,布局,材料选择等问题,项目经理会根据设计图纸来现场施工,设计图纸能为你节省非常多的时间和钱。
如果没有了图纸,也就没有了设计师,无论自己还是请的施工队伍,基本上没有办法做到尺寸符合实际,有些连最基本的家具家电位置都可能不对,这些问题等你装修好了,你就知道,例如插座位置,台面高度,柜子尺寸,厨房烟机灶具尺寸等等。
所以说,这个钱还是别省了,而且设计费又不贵,一个好的设计师,会让你解决非常多的问题,省钱又省时间,用这个时间,你自己能赚更多的钱,何乐而不为呢?
谢谢,我是凌子设计师,以上是我个人观点,希望对你有所帮助,喜欢我的可以关注我!每天给你带来不一样的家装案例及装修知识!







首先很高兴回答你的问题……
为了多开出钱来 装修公司会把一个整的东西拆成很多项 这样就可以多出很多钱 这是装修公司的通病 如果不想上这个当 最好直接找装修师傅 你就在有正在装修的小区里转一下 看一下哪家装的好 就找哪家的装修师傅最好 这样你就不会受到一层层的剥削了 你不知道我们这行里的规程 你把工程包给装修公司 装修公司抽掉百分之十的工程款后再转包给他们下面的二包 二包负责造预算、买材料 当然可想而知他们买的材料的质量啦 他们一家活也要赚个几千 然后再把活扔给我们这帮干活的 到我们手里已经是没什么水分的勒 而且他们还会跟你签订一个按图施工的合同 如果施工当中你想更改一下你觉得不合理的地方 你要同时跟好几个人商量 他们会变着方的找你加钱 反正很麻烦 你的这几个钱还不够他们分的呢 你就听我的 找个装修师傅到你家造一下预算 再让他说一下工钱



觉得文章有用就打赏一下文章作者
支付宝扫一扫打赏

微信扫一扫打赏


还没有评论,来说两句吧...